Храм в Минcке

ХрамВ честь святых благоверных князей-страстотерпцев Бориса и Глеба прихода в честь святой равноапостольной великой княгини Ольги ГородМинск Проект2019 СтадияЭскизный проект АвторыПолина Аскарова, Дмитрий Остроумов

О проекте

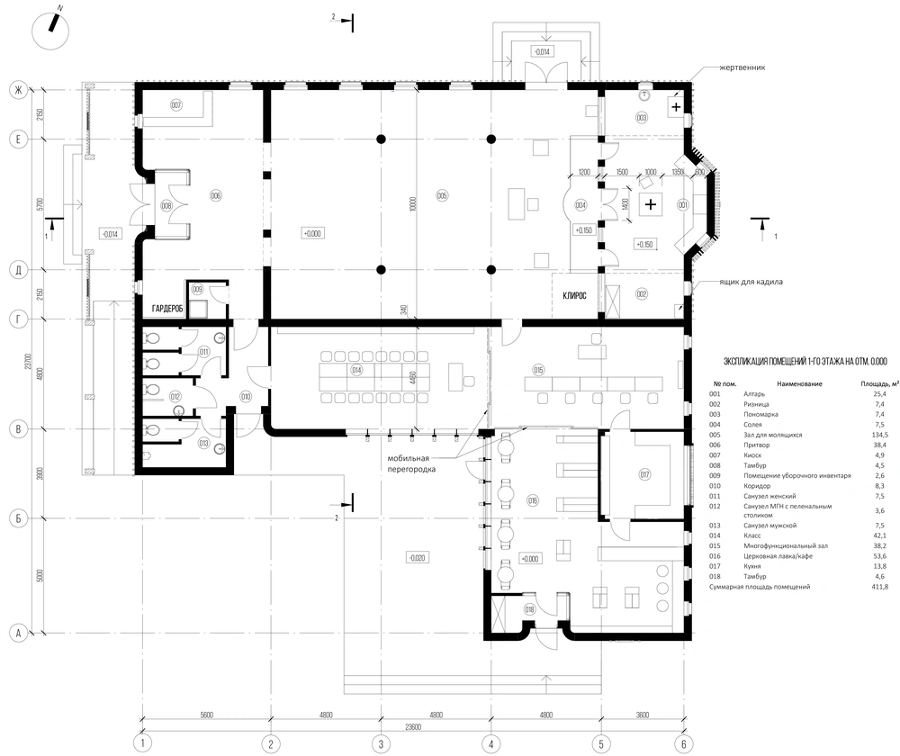
Проектируемый быстровозводимый храм в честь святых благоверных князей-страстотерпцев Бориса и Глеба располагается на участке, который планируется для выделения приходу в честь святой равноапостольной княгини Ольги под строительство большого и малого храмов, здания приходского семейно-молодежного центра с образовательной функцией и примыкающей к участку рекреационно-социальной зоной. Проектируемый храм является малым храмом комплекса, который планируется возвести в первую очередь. Храм рассчитан на 245 прихожан. Участок расположен в г. Минске, рядом с прибрежной зеленой зоной у реки Свислочь между рекой с велодорожкой, ул. Ванеева и ул. Тростенецкой. Предполагаемая площадь участка для всего комплекса 1,03 га.

Здание одноэтажное. Архитектура лаконична и благодаря быстровозводимым каркасным конструкциям предполагает возможность его строительства в короткие сроки. Конструктивно храм представляет собой трехнефную базилику с большим боковым пределом. Архитектура храма имеет отсылку к северным деревянным храмам, а также ориентацию на современные стилистические решения и конструкции.

Храм имеет притвор с гардеробом, церковным киоском и отдельно выделенным помещением уборочного инвентаря. Из притвора через тамбур-коридор осуществляется доступ к санузлам, к помещениям общественного назначения (класс, многофункциональный зал) и дополнительный эвакуационный выход на улицу через южную террасу. Основной объем храма – собственно базилика, прямоугольная в плане, завершающаяся алтарем на востоке. Зашивка потолков боковых нефов из деревянного планкена бионической формы, напоминающей корабельную палубу, что находит параллель с образом храма как корабля спасения. Центральная часть традиционная, с открытыми видными в интерьере балками и стропилами. Из основного помещения храма имеется дополнительный выход с северной стороны. В интерьере притвора также видна открытая стропильно-балочная система. Перед входом в храм организовано большое крыльцо с пандусом для лиц с ограниченными физическими возможностями.

Проект выполнен в соответствии с основными архитектурно-строительными нормативными актами в современных архитектурных формах в мастерской «Прохрам».