Современный храм в Минске

ХрамХрам преп. Гавриила Самтаврийского (Ургебадзе) в Минске ГородМинск Проект2021 Реализация2022-2025 СтадияЭскизный проект АвторыПолина Аскарова, Дмитрий Остроумов

История

Деревянный храм комплекса святителя Спиридона Тримифунтского задумывался современным, минималистичным, на контрасте со сложной византийской пластикой главного кирпичного храма. У него достаточно редкое посвящение — святому наших дней, преподобному Гавриилу Самтаврийскому.

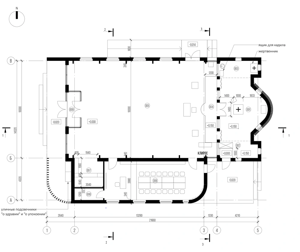
Участок проектирования расположен в спальном районе, на краю обширной парковой зоны на пересечении улиц Мазурова и Скрипникова в Минске. Комплекс включает в себя основной каменный храм, деревянный малый храм и часовню. Использованию каркасной технологии строительства позволило в короткие сроки построить здание деревянного храма, благодаря чему приход смог начать литургическую жизнь задолго до начала основного строительства.

В покрытии главок использована традиционная для Беларуси деревянная дранка. Отделка стен выполнена деревянным планкеном двух типов ширины, покрытие кровли — окрашенная фальцевая сталь. Изначальная планировка предполагала устройство помещения для воскресной школы со стороны южного фасады, но на стадии рабочего проектирования от него отказались.

Проект выполнен в соответствии с основными архитектурно-строительными нормативными актами в современных архитектурных формах с сохранением основных функциональных, богослужебных и символических особенностей храмового зодчества Православной Церкви в мастерской «Прохрам».