Монастырский комплекс

ОбъектМонастырский комплекс ГородМинск Проект2018 СтатусЭскизный проект АрхитекторыАскарова Полина, Ахремкин Дмитрий

История

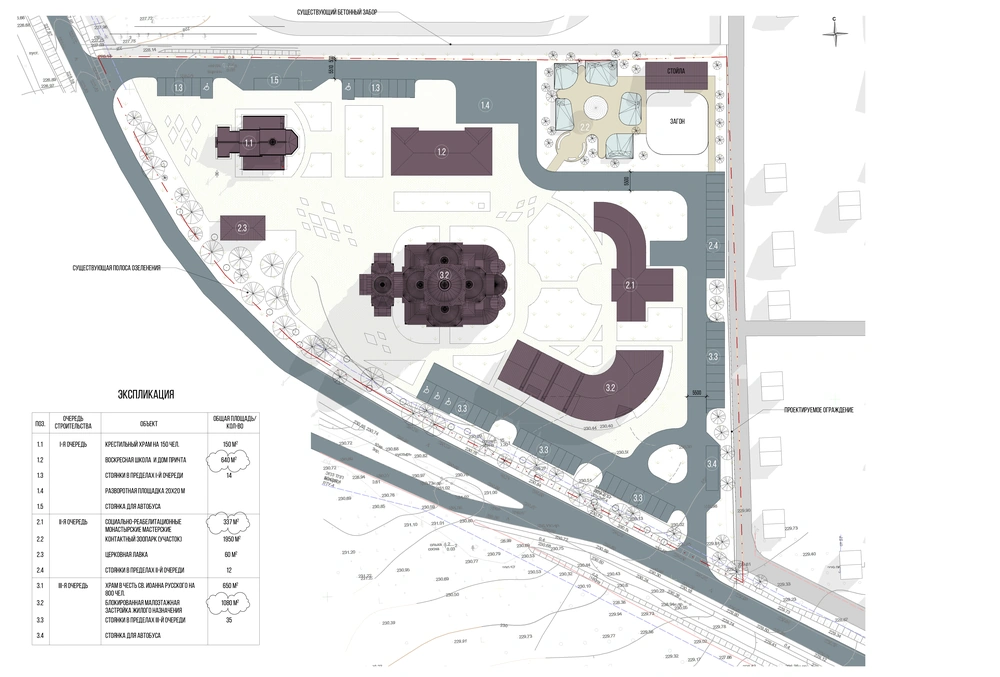
Для монастырского комплекса с социально-реабилитационным центром был разработан генплан, предполагающий застройку в три очереди. В состав комплекса вошли малый крестильный храм на 150 человек, большой храм в честь св. Иоанна Русского на 800 человек, воскресная школа, дом причта, монастырские мастерские, блокированная жилая застройка и контактный зоопарк.

Воскресная школа предназначена для проведения просветительской деятельности с насельниками интерната — пожилыми людьми и людьми с ограниченными возможностями. Мастерские предназначены для реабилитации насельников путем приобщения их к ремеслам: керамике, шитью, кулинарии и печению просфор.