Реконструкция храма

Храмхрам Святого равноапостольного князя Владимира. Москва, Кузьминки Проект2025 Реализация2025 НаградыДиплом Союза архитекторов России на конкурсе «Дерево в архитектуре 2025»

История

В ноябре 2011 года в Московском казачьем кадетском корпусе им. М.А. Шолохова по был освящен храм во имя Святого равноапостольного великого князя Владимира. Святой Владимир, просветитель Руси, стал небесным покровителем корпуса. С тех пор в храме регулярно проходят богослужения, совершаются таинства и требы. Здесь проводятся присяги казаков, молебны на начало учебного года, освящение помещений и традиционные крестные ходы. Храм стал духовным центром для кадетского корпуса и жителей Кузьминок.

Необходимость в собственном храме ощущалась давно, так как духовное воспитание кадетов неразрывно связано с православием. До постройки храма кадеты и офицеры посещали службы в других храмах, включая Николо-Перервинский монастырь.

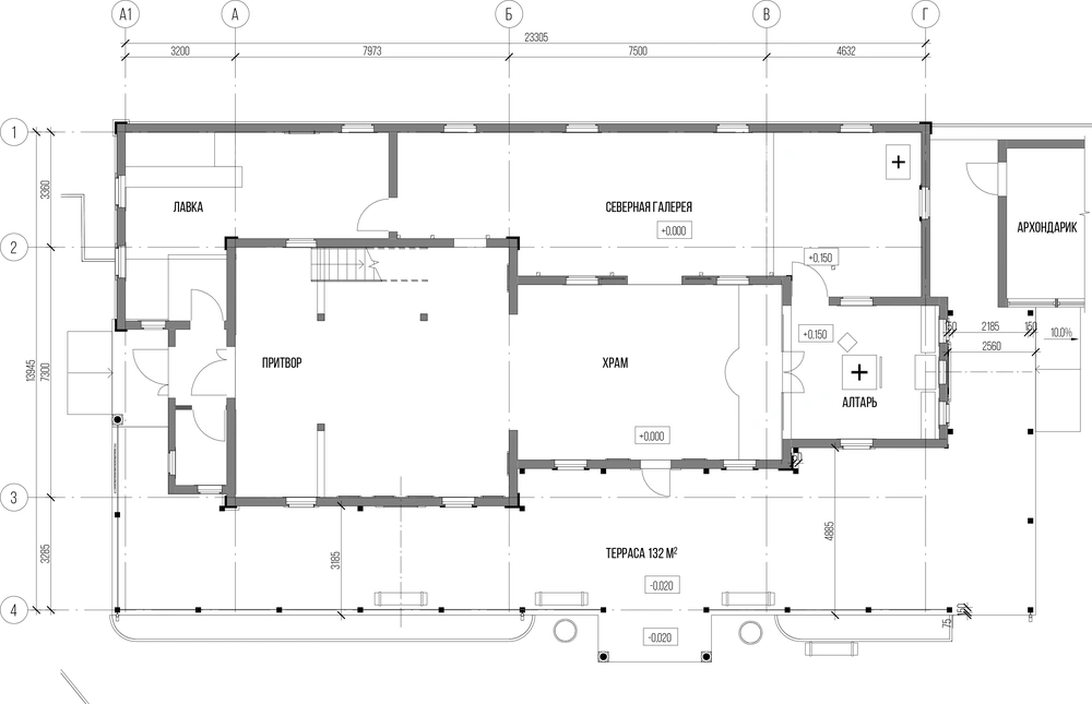
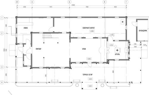
Легкий деревянный храм построен в традициях русского зодчества. Здание строилось поэтапно, к маленькой часовне были пристроены алтарная часть, трапезная и колокольня. Частично здание построено по каркасной технологии, частично из бруса, наружная отделка из блок-хауса с имитацией бревна. Со времени строительства прошло более 20 лет и назрела необходимость в решении нескольких задач по улучшению эксплуатационных характеристик, а также функциональных и эстетических качеств здания, решение которых представлено в проекте.

Адрес храма: Маршала Чуйкова д. 30А. Сайт храма.

Приход

Начинается всё как обычно с людей. А необычен этот не самый многочисленный приход тем, что помимо богослужебной жизни их объединяет еще своя общеобразовательная школа «Вифания», детский сад «Трилистник», воскресная школа для детей и взрослых. Приход проводит регулярные музыкальные гостиные для всей семьи, а также мастер-классы, походы, организует паломничества, благотворительные акции и собрания клуба многодетных семей. И еще тут очень много детей.

Терраса

Несколько лет назад с северной части здания была пристроена галерея, увеличивающая вместимость храма, а также размещающая церковную лавку в зоне притвора. Плотность застройки района продолжает расти, и появилась необходимость увеличения полезного пространства храма и с южной стороны. В проекте разработана крытая терраса, расположенная симметрично северной галерее, а также создающая навес над главным входом и вдоль алтарной апсиды. Терраса представляет из себя буферное пространство между городской средой и сакральным пространством храма. В теплое время года она может использоваться для проведения бесед и мероприятий, вмещать молящихся на большие праздники, служить зоной отдыха и общения прихожан вне богослужебного времени. Строительство террасы позволит частично убрать забор, который сильно ухудшает внешний вид здания, подчеркивая неправильную форму участка.

Фасады

Городская среда преображается год от года и запрос общества на открытость, эстетичность и архитектурную целостность растет, особенно среди молодежи. Само здание храма может быть мессионерским инструментом, если оно несет подлинную красоту, творчески переосмысливающую архитектурную традицию. Проект фасадов выполнен с отсылкой к деревянной архитектуре русского севера, продолжая данную тематику, заданную интерьерными росписями шатра.