1 / 7
Приходская школа в Жулебино
Объектприходская общеобразовательная школа, Москва/span>
Проект2018
Реализацияэскизный проект
История
Семейная школа «Вифания» была создана по благословению настоятеля храма Иоанна Кронштадтского в Жулебино протоиерея Димитрия Арзуманова в 2009 году. Вначале это была воскресная школа, которая постепенно, по мере взросления детей, разрасталась. Появился приходской детский сад, художественная школа и общеобразовательная школа.
Задача
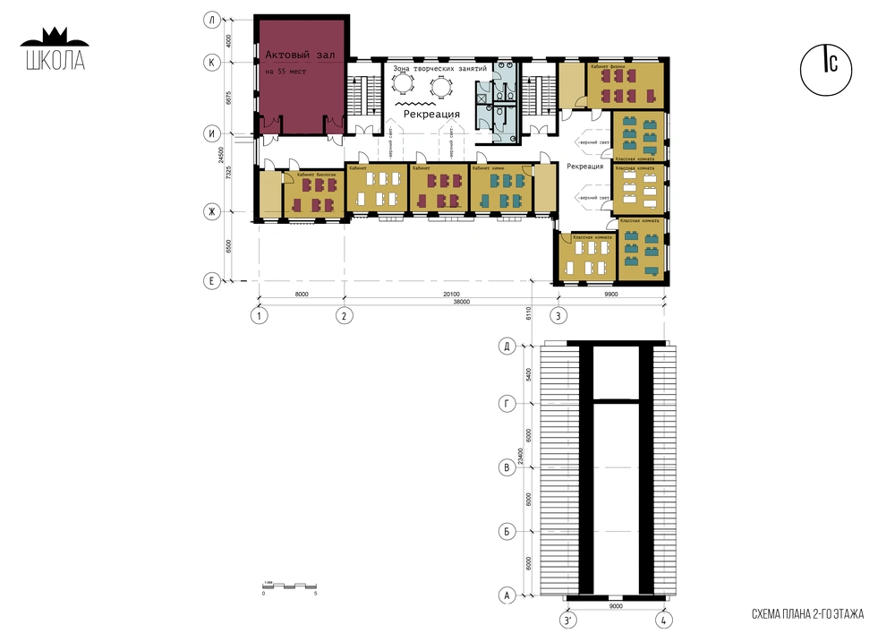
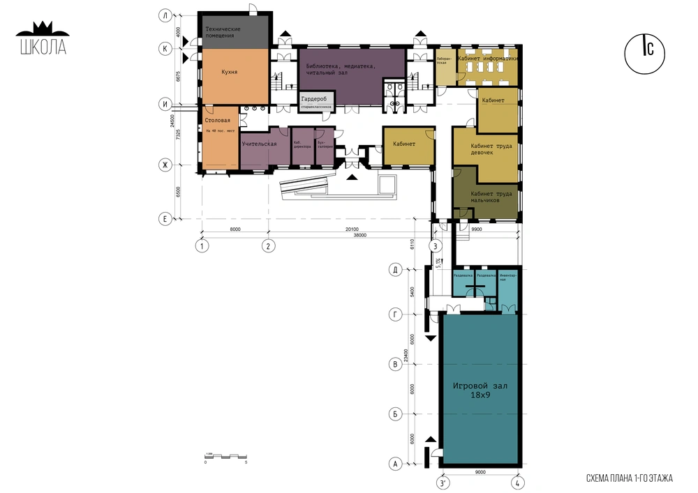
Школа долгое время действовала в арендованных помещениях первых этажей жилых домов. Перед нами была поставлена задача спроектировать здание школы для обучения детей с 1 по 11 классы. Расчётное количество детей в классе 10 человек. В здании предусмотрены классные комнаты, кабинеты, лаборатории, актовый зал, медиатека и спортивный зал.